住宅用の土地や住宅の購入を検討する際、特に気になるのが、周辺環境などの「立地条件」と「価格」ではないでしょうか? 「立地条件」と「価格」、この2つをポイントにした時に、狭小地を選ぶというのも一考です。今回は、狭小地のメリットとデメリット、狭小地に住宅を建てる時におすすめしたい間取りや工夫についてお伝えします。
この記事の目次
狭小地とは?
狭小地とは、その名の通り狭い土地のこと。狭小地の面積について詳しい定義はありませんが、一般に15~20坪以下の土地に対して言うことが多く、整形地以外にも台形や三角形の土地といった不整形地がよくあるのも特徴です。また、狭小地は首都圏や都市部などの坪単価の高い人口密集地に多い傾向があります。狭小地に建てられた家は、狭小住宅と呼びますが、狭小地ならではのメリットを活かして、あえて狭小住宅の購入を検討する人も少なくありません。最近は狭小地ブームと言われるほど、狭小地や狭小住宅も人気となっています。
狭小地・狭小住宅のメリット5選

狭小地や狭小住宅には、具体的にどのようなメリットがあるのでしょうか? 狭小地や狭小住宅を購入する人たちはどんなところに魅力を感じているのでしょう。ここでメリットを5つピックアップしてみました。
駅近や都市部など利便性の高い場所に多い
先にも述べましたが、狭小地は首都圏や都市部、さらに駅近など、人気のある立地に多いという特徴があります。生活圏は便利なところが良い、というニーズの高さがうかがえます。
土地購入費を抑えやすい
狭小地を選ぶ際の最大のメリットと言えるのが、土地購入費を抑えられる点です。都市部といった坪単価の高い人気の場所でも、狭いがゆえに土地購入費を低く抑えられます。まさに、狭さを逆手にとったメリットと言えるでしょう。
固定資産税・都市計画税など税金を安く抑えられる
狭いからこその大きなメリットとして、固定資産税・都市計画税などの税金が安くなるという点が挙げられます。固定資産税も都市計画税も、市町村(東京23区は東京都)が徴収する地方税です。固定資産税は原則すべての土地や家屋、都市計画税は都市計画法による市街化区域内にある土地と建物に、それぞれ毎年課税されます。税額を計算する時には、固定資産税評価額が基準になりますが、固定資産税評価額の算出には土地や家屋の面積も加味されています。そのため、狭小地・狭小住宅では税金が安く抑えられます。また、固定資産税には住宅用地対する特例措置があり、住宅用地の面積が200平方メートル以下の場合は、課税標準額が価格の1/6になります。
新築注文住宅の固定資産税はいくら?マンションとの違いや節税方法も解説
住宅を購入した後に支払う必要がある固定資産税。どのくらいの金額を払っているのか平均額が気になりますよね。そこで今回は、固定資産税の基本の計算方法や軽減措置について紹介します。新築注文住宅とマンションでの税金のかかり方の違いなども解説します。
フロアごとの掃除面積が少ない
狭小住宅の場合、おのずとフロアごとの床面積が少なくなりますが、実は床面積が少ないのは掃除の観点から考えればメリットです。広い部屋は開放的な反面、掃除する範囲も広くなり、管理が大変な面も…。一方、コンパクトに設計されている狭小住宅なら、掃除する範囲が少ないので、掃除も短時間で終わらせられます。
生活コストを抑えやすい
生活には光熱費、設備や所有物にかかる費用、修繕費など様々なコストがかかりますが、狭小住宅は生活コストを節約する上でもメリットがあります。例えば、居住空間が狭いために冷暖房の効率が良く光熱費の節約になったり、冷暖房を複数の空間で共有して購入台数を減らすなど住宅設備の購入費の削減に役立ったりします。また、狭小地は駅近や都市部などの利便性の高い場所に多いため、自分の生活スタイルの上でも困らないようなら、車を所有しない選択もとりやすくなります。車がなければ駐車場の必要もなくなるので、駐車場分のスペースを居住空間に活用できます。また、住宅がコンパクトなのを活かして、将来的に修繕費が抑えられる設計となるように建築プランの相談をするのも良いでしょう。
買う前に押さえておきたい! 狭小地のデメリットと対策
狭小地・狭小住宅のメリットを知ったうえで、デメリットも紹介します。一生に一度の買い物と言われるように、住宅購入には大きな資金が必要になります。デメリットを知らないまま購入して後悔するのを避けるためにも、デメリットと対策についても確認しておきましよう。
住宅ローンが組みづらい場合がある
狭小地のデメリットの1つとして、住宅ローンが組みづらい場合があります。一般的に住宅ローンは購入する不動産を担保に融資されます。それぞれの金融機関で住宅ローンを組むために必要な条件が決められていますが、購入する不動産の担保力もその1つ。金融機関の条件の中に、土地面積や住宅の床面積の基準が決められていることが多く、狭小地・狭小住宅だと基準に満たない可能性も。ただし、金融機関ごとに条件が違うので住宅ローンが組めないというわけではありません。住宅ローンが組めない金融機関が出る可能性を頭に入れて、候補の金融機関に住宅ローンが組めるかを事前に確認しておくと良いでしょう。
売却しづらい可能性
狭小地・狭小住宅の場合、将来売却する際に、買い手が見つかりにくい場合があります。なぜなら先に述べたように、住宅ローンが組みづらいケースがあるためです。住宅ローンが組めないと、現金一括もしくは一般の住宅ローンよりも高金利のローン(信販会社などで提供するローンなど)を利用して購入する必要があり、敬遠される可能性も。もしも買い手が見つかりにくい場合には、狭小地の売却ノウハウにたけた不動産会社の仲介で売却するのが有効。将来的に売却の可能性がある場合には、狭小地に強い不動産会社の情報も集めておきましょう。
建築費が割高になる場合がある
狭小地に住宅を建築する場合、3階建てや地下室を作るなど、居住空間を確保するための設計上の工夫が必要になります。また、狭い中でも住み心地を良くするためにスキップフロアを作ったり、吹き抜けや中庭などを作って採光の工夫をしたりするなど、凝った設計プランになることも。そのため、建築費用が高めになる傾向があります。
立地によってはデザインが制限される
狭小住宅を建てる際、「建築基準法」で特に注意したい制限が2つあります。その1つが、「北側斜線制限」。北側の隣地の採光・通風を確保するために設けられており、この制限が適用される条件に該当する場合は、住宅など建物の高さに制限がつきます。もう1つは「道路斜線制限」で、こちらは道路の採光・通風を確保するために決められており、道路に面した建物の高さが制限されます。建物が面する道路幅やエリアによって制限される高さが変わりますが、該当する場合には3階建てとなることが多い狭小住宅ではデザインに影響が出やすくなります。法律上の制限についても知識を得て、自分が購入する土地が該当するかどうか、前もって調べておくと安心です。
狭小住宅でも快適に! 間取りのアイデアを紹介
狭い土地に建てられた狭小住宅でも、間取りのアイデアで十分な居住空間の確保が可能です。ここでは、狭小地に住宅を建てる場合におすすめのアイデアをご紹介します。
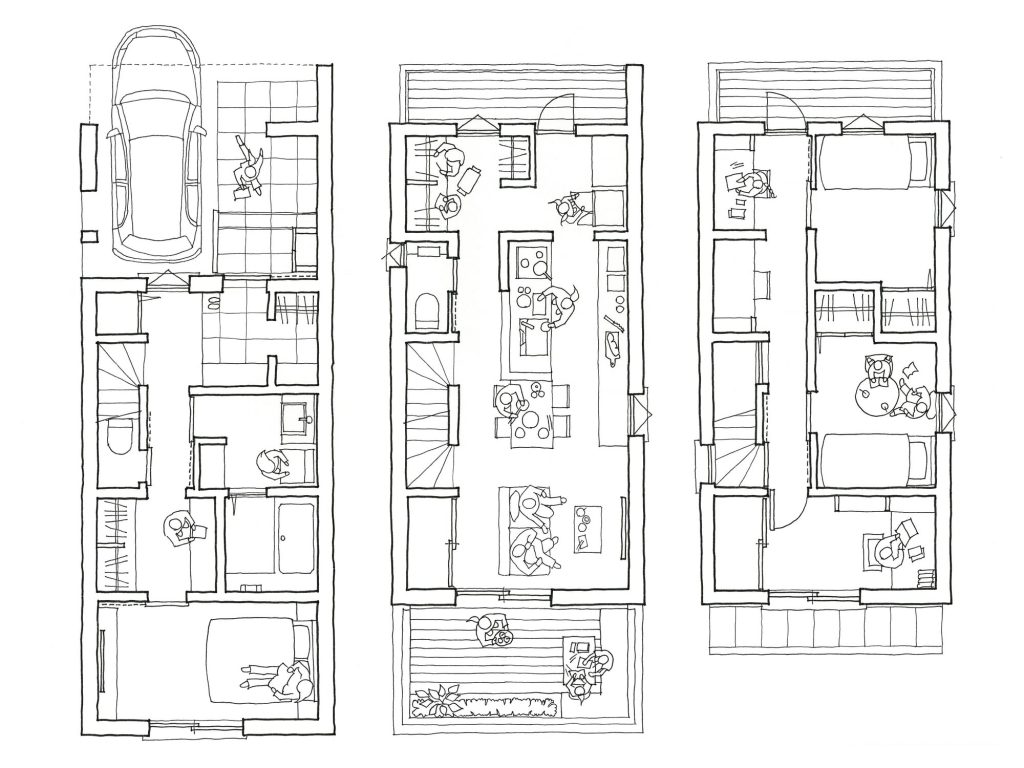
3階建てで居住空間を増やす
一般に狭小住宅では、十分な居住空間を生み出すために3階建てにすることが多くなります。3階建てにすることで床面積を増やし、子ども部屋や趣味の部屋など、複数の個室を作るのも可能に。また、確保できない庭の代わりに屋上などを作り、家族で楽しむスペースを作るのもおすすめです。3階建てにする場合は、フロアの移動が多くなることを考慮し、水回りやトイレなど使用頻度の高い設備の場所はもちろん、生活動線が使い勝手の良いものになるように熟慮しましょう。
ロフトでスペースを有効活用
限られた空間を利用する狭小住宅の場合、ロフトなどを作りスペースを有効活用するのも1つの手です。収納をロフトに集約することで、生活空間を広く確保できます。
吹き抜け・中庭などで採光対策
狭小住宅では、大きな窓がつけられずに採光が課題となることがあります。そんな時には、吹き抜けや天窓を作って光を取り入れるのはいかがでしょう。家の中が明るくなるというだけでなく、空間全体の開放感も生まれます。狭小住宅は狭いがゆえ、間取りによっては圧迫感が出やすいものですが、吹き抜けをつくることで圧迫感が解消できます。また、スペースがとれるようなら採光と癒しを兼ねて家の中に小さな中庭を作るのもいいですね。
限られた空間をうまく使うための工夫
狭小住宅の限られた空間を、工夫次第で活用できます。ここでは、うまく使うための工夫をいくつかピックアップしてみました。
可動式の間仕切りを上手に使う
可動式の間仕切りは、スペースの少ない狭小住宅にぜひ取り入れたいアイテムです。必要な時に壁代わりに利用して空間を分け、広く使いたい時は間仕切りを開け放ちます。その時々の状況に合わせて、自由自在に便利に使い分けられます。例えば、子どもが小さいときは、目が届きやすいよう間仕切りを開けて広く使い、子どもが成長して個室が必要になったら、間仕切りを使って部屋を区切ることができます。可動式の間仕切りを活用して壁を減らせば、内装費の節約にもなります。また、近年増えている在宅ワークの場合も、仕事の時だけ間仕切りを活用してワークスペースを確保できます。
オープン外構で圧迫感を軽減
狭小地に住宅を建てる場合、門をつけるスペースがない、あっても圧迫感が出てしまうということが往々にしてあります。そのため、狭小住宅では、あえて門などを作らないオープン外構が適しています。オープン外構とは、家の敷地と隣接の道路などに門や塀、フェンスなどの仕切りを作らない外構スタイルです。狭さによる圧迫感を軽減してくれます。また、塀などの仕切りを作らないため、外構工事のコスト削減にもつながります。さらに敷地がオープンになっているので、不法侵入者がいたら非常に目立つため、セキュリティの面でもメリットと言えるでしょう。ただし、敷地がオープンになるので、プライバシーを守る工夫は必要です。
デッドスペース収納の活用
狭小住宅を建てる時に悩みのタネとなりがちなのが、収納スペースの少なさです。住み心地を優先して居住空間を多めにとると、収納スペースが減ってしまいます。そこで活用したいのが、デッドスペース収納です。リビングやダイニングの床下、3階建てになることの多い狭小住宅の階段下といったデッドスペースを有効に利用しない手はありません。また、壁に大きなオープン棚をつけるだけでなく、壁の厚みを利用して収納を作るといった裏技も! さらに予算に余裕があれば、地下室を作るのも一案です。デッドスペース収納を上手に取り入れましょう。
狭小地のメリットは魅力的!間取りや工夫で納得の家づくりを
狭小地や、狭小住宅には、狭いからこそ生まれるメリットも多くあります。もちろん、デメリットもありますが、デメリットに勝るメリットを感じるなら狭小地の住宅建築を考えてみてはいかがでしょうか。間取りや工夫次第で、狭さが気にならない快適な家づくりができます。住み心地が良く、デザイン性の高い狭小住宅を得意とするハウスメーカーも多いので、実際にモデルハウスを見に行きイメージをしてみてはいかがでしょうか。
お近くの展示場はこちらから検索

たくさんのハウスメーカーの住宅空間を体験してみましょう。ご予算や家族構成、理想のライフスタイルなどを相談してください。きっとあなたにぴったりの暮らし方が見つかるはず。
